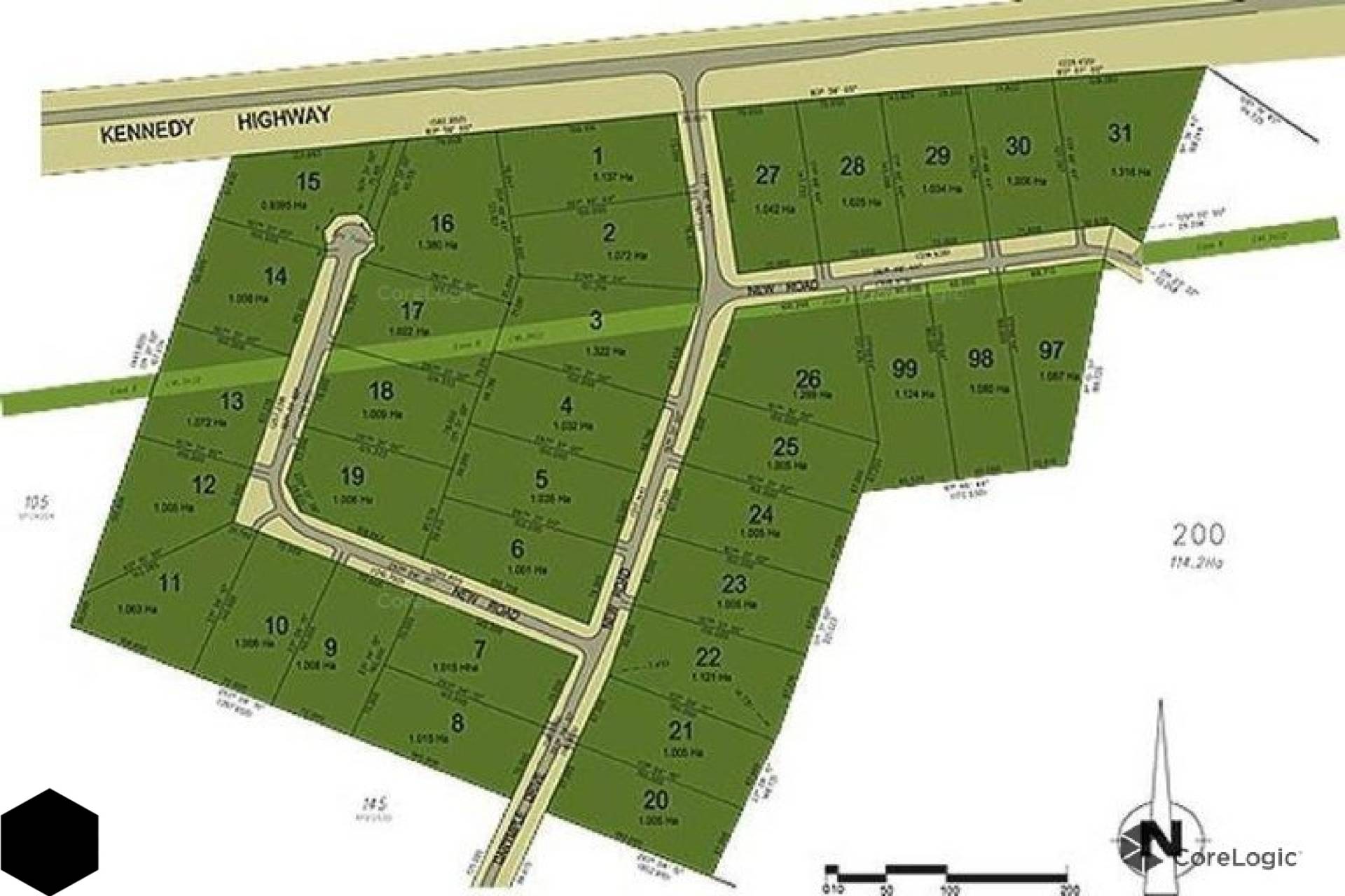
Stunning piece of Millstream

Ready to go   just over 2.5 acres . 10 minutes to Ravenshoe , easy access to Kennedy Highway

  call Chris 0415906711

1.12 ha
Address 14319 Kennedy Hwy, Millstream
Price $120,000
Property Type Residential
Property ID 283
Category Vacant Land
Land Area 1.12 ha

Agent Details

Chris Hearne photo

Chris Hearne

0415 906 711
View Profile